PROJECT SPECS:

LOCATION:

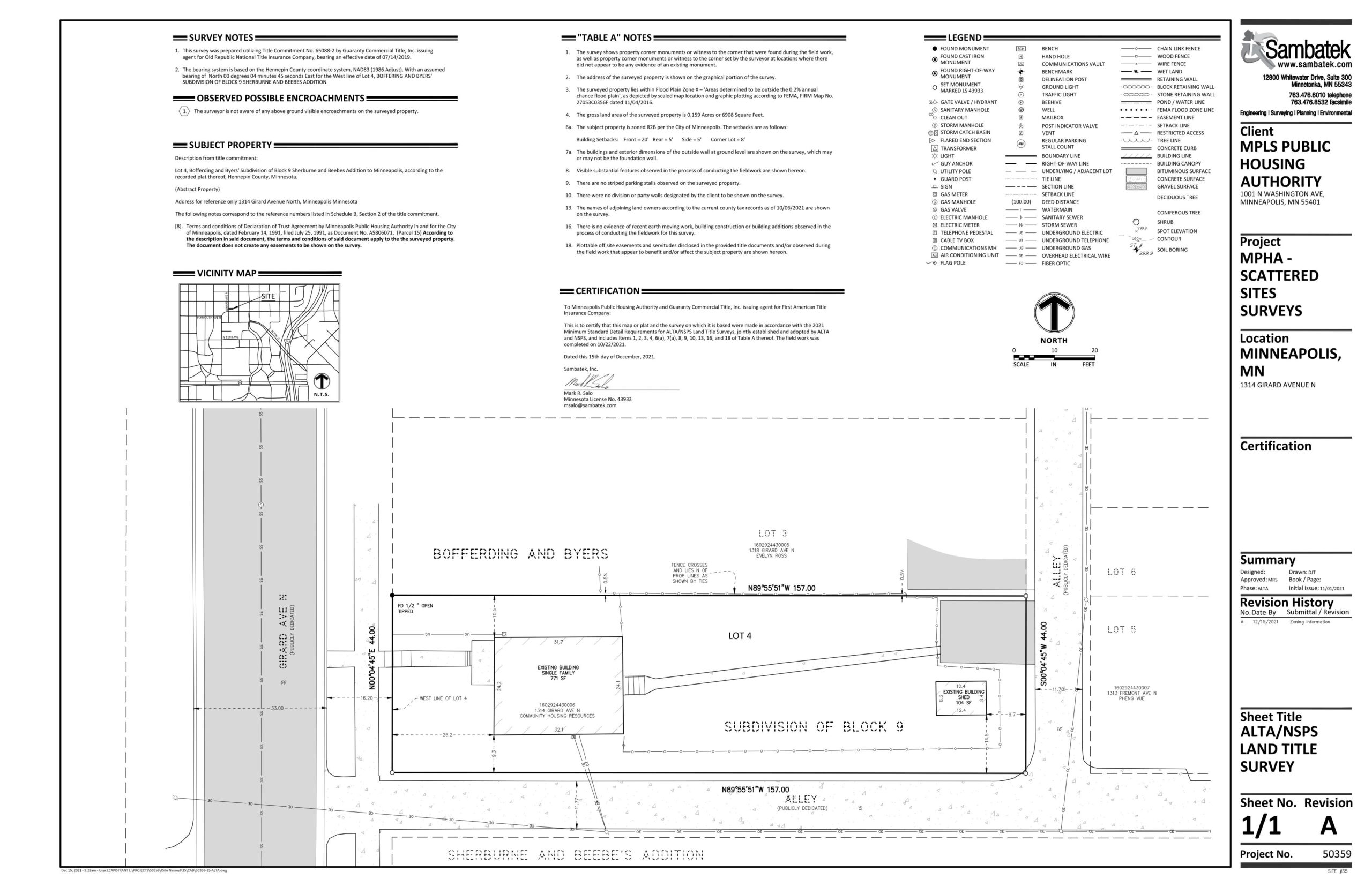
Minneapolis, MN

Year Completed:

2022

Size:

88 Lots

Client:

Minneapolis Public Housing Authority

Architect:

NA

Other Partners:

NA

Selected by the Minneapolis Public Housing Authority to complete Professional Land Surveying Services, Sambatek completed ALTA surveys for 88 individual lots, showcasing our commitment to precision, efficiency, and meeting tight deadlines.

The scope of our work included comprehensive boundary surveys for all 88 lots, with a particular emphasis on additional boundary work for breakdown and verification of property corners. In instances where necessary, we expertly re-established boundary corners, ensuring the highest accuracy and compliance. The intricacies of this project required a quick turnaround, with work commencing in the fall, and our team rose to the challenge with unwavering dedication.

Our collaborative approach and attention to detail were instrumental in navigating the unique complexities of each lot, providing the Minneapolis Public Housing Authority with a thorough and reliable understanding of their property boundaries. This project demonstrates our proficiency in handling large-scale surveys with precision and efficiency, solidifying our position as a trusted partner for comprehensive land surveying services in the Minneapolis area.